Differentieel schakelaar
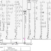
Elektrische installatie bestaat uit twee verdeelborden
Kookplaat is4 polig 380 aangesloten aan verdeelbord 2, lijn f
Is gezekerd met 25A welke zich in verdeelbord 1 bevind
Nu heb ik hier nog een 4 polige differentieel schakelaar
40A-30MA,mag ik deze op lijn f plaatsen on de
Spanning enkel van de kookplaat eventueel uit te schakelen
en niet het voledig bord 2, wat nu wel gebeurd wanneer die 25A zekering
omschakel
Dank bij voorbaat
frans





