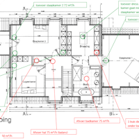
Ventilatieplan
Hallo,
We willen graag onze ventilatie type D zelf plaatsen. Als toestel gaan we een Zehnder ComfoAir Q450 nemen en we gaan met gegalvaniseerde buizen werken, dus niet met flexibels.
De unit zal op de zolder worden geplaatst (net boven de keuken/wasplaats in het midden. Doorsteek via de muur (zowel af- als aanvoer).
De bureau moeten we niet ventileren omdat we geen deur tussen bureau en woonkamer zullen plaatsen.
We hebben geprobeerd om zo goed als mogelijk onze ventielen aan te duiden.
Rood = afvoer
Groen = aanvoer
Het gaat om een onafgewerkte nieuwbouwwoning waar de chape reeds gelegd is en de muren reeds bepleisterd werden.
Hebben jullie een idee van met welke diameters van galvabuizen we waar moeten werken?
Op de zolder direct aan het toestel voorzien we aan toe- en afvoer telkens een geluidsdemper.
Moeten we ergens anders in de woning er nog voorzien?
Is het een probleem als we 1 kanaal trekken naar de keuken en van daaruit ook doorgaan naar wasplaats en wc (onder)?
Om in balans te zijn hebben we het debiet op de wc's naar omhoog getrokken van 25 m³/h naar 50 m³/h, dit van de wasplaats van 50 m³/h naar 75 m³/h en dit van de badkamer van 50 m³/h naar 75 m³/h.
Geeft dit problemen naar tocht in deze kamers?
Is het aangeraden om het ventiel in de badkamer net boven de douche te plaatsen of is dit ten sterkste af te raden omwille van mogelijke trek?
Belangrijk voor ons en ik denk voor iedereen is dat we zo weinig mogelijk geluid en trek hebben.
Alle verbeteringen aan onze ventilatiekanalen/posities/... zijn meer dan welkom.
Ik hoop dat ik dus van jullie veel kan leren!







.jpeg?w=760&auto=format&ar=4%3A3&fit=crop&crop=faces%2Cfocalpoint&corner-radius=10&mask=corners&lossless=true&s=64f0d80d1d2ed62a005005bbb1a6536a)