Controle situatieschema aub
Dag allemaal
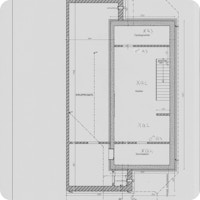
Ik heb een poging gedaan om de verlichting van onze nieuwbouwwoning zelf te tekenen. Het gaat enkel over de verlichting en enkel over de situatieschets. Voor de lichtpunten die je met slechts 1 of 2 verschillende drukknoppen kan aan/uitschakelen ben ik vrij zeker (bijv Q4 kelder of R3 slaapkamer 3). Voor de lichtpunten die je op 2 verschillende plaatsen kan aan/uitschakelen ben ik minder zeker van mijn stuk. Ik twijfel dan ook of ik het juist getekend heb en zou het fantastisch vinden als iemand mij op de juiste weg kan helpen.
Verder twijfel ik over de rolluik T1. Gebruikte ik hiervoor de juiste symbolen?
De stopcontacten heb ik ook allemaal al getekend maar deze laat ik nog even achterwegen omdat het anders wat onduidelijk wordt.. als het dat nu al niet is! :)
Alvast bedankt.









