Plakken onder de diba
Hallo allemaal
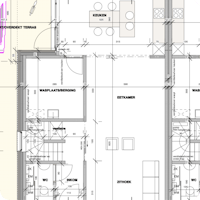
Deze week is de plekker begonnen in mijn huis en is hij tot de conclusie gekomen dat hij onder de diba moet gaan plekken aangezien mijn vensters lager zijn geplaatst als de Witte yton blok. Kan dit een probleem vormen en wie is hier aansprakelijk voor ? De Bouwheer, De architect?
De yton blokken zijn 25 , en de ytonblokken van de vensters zijn de helft geloof ik .
Ik heb ook contact opgenomen met mijn bouwheer dat als ik later opkomend vocht krijg in mijn huis dat ze hierdan een papier voor opstellen zodat ik toch veilig ben gesteld en dit door hun vergoed word. Maar dit wouden ze niet doen....
Ik heb mijn plekker ook de toestemming moeten geven om onder de diba te plekken anders kon hij niet verder.
Kan iemand lij verder helpen?




.jpg?w=760&auto=format&ar=4%3A3&fit=crop&crop=faces%2Cfocalpoint&corner-radius=10&mask=corners&lossless=true&s=0a5abfbb0e410082d200914ddee6e86d)

