Is mijn badkamer muur een steunmuur
Dag allemaal,
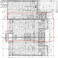
Ik heb net een huis gekocht en had graag de badkamer groter gemaakt en ik vroeg mij af of de muur die we willen uitbreken een steunmuur is of niet, want via de plannen kom ik er niet echt aan uit.
Ik denk zelf van niet maar ik ben toch liever zeker.
De muur die we willen verwijderen is rood omcirkeld.
Mvg
Jens







